

主要特点如下:
1.体形小、重量轻、结构长度只有旋启式止回阀的三分之一左右。
2.缓闭系统,性能优良,不受管道中介质的影响,阀板先速关后缓闭,可防止破坏性水锤。
3.橡软密封,封闭性能好,耐磨损,使用寿命长。
4.橡胶缓冲,启闭平稳,无震动,无噪音。
5.比老式止回阀流阻小,有明显的节能效果。技术参数1、缓闭时间:在60秒以下根据需要任意调节。
6.水锤峰值:在公称压力的1.2倍以内。
7.强度试验:公称压力的1.5倍以内。
8.介质温度:0-85°C
9.适用介质:净水、源水、污水、海水、石油等。
主要性能规范
|
公称通径 |
试验压力 |
工作压力 |
工作温度 |
适用介质 |
|
1.0 |
1.11.5 |
1.0 |
≤80 |
清水,原水 |
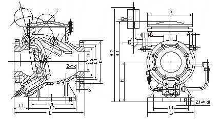
主要连接及外形尺寸(HH44X-10)
|
公称 通径 |
D |
D1 |
D2 |
L |
L1 |
L2 |
L3 |
尺寸(mm) |
f |
b |
D0 |
Z1-Φd1 |
Z-Φd |
|
L4 |
L5 |
H |
H1 |
H2 |
|
100 |
220 |
180 |
156 |
350 |
70 |
70 |
240 |
170 |
230 |
200 |
408 |
500 |
2 |
222 |
228 |
4-17.5 |
8-18 |
|
150 |
285 |
240 |
211 |
480 |
130 |
130 |
243 |
200 |
280 |
274 |
550 |
740 |
2 |
24 |
310 |
4-22 |
8-22 |
|
200 |
340 |
295 |
266 |
500 |
122 |
122 |
234 |
270 |
350 |
302 |
606 |
807 |
2 |
24 |
360 |
4-22 |
8-22 |
|
250 |
395 |
350 |
319 |
550 |
138 |
138 |
346 |
270 |
390 |
348 |
662 |
892 |
2 |
26 |
460 |
4-22 |
12-22 |
|
300 |
445 |
400 |
370 |
620 |
182 |
182 |
360 |
320 |
400 |
370 |
802 |
1140 |
2 |
26 |
520 |
4-22 |
12-22 |
|
350 |
505 |
460 |
429 |
720 |
205 |
205 |
380 |
400 |
460 |
410 |
930 |
1230 |
2 |
26 |
655 |
4-22 |
16-22 |
|
400 |
565 |
515 |
480 |
900 |
200 |
200 |
495 |
420 |
550 |
450 |
1115 |
1450 |
2 |
26 |
670 |
4-26 |
16-26 |
|
500 |
670 |
620 |
582 |
980 |
250 |
250 |
600 |
460 |
570 |
550 |
1353 |
1700 |
2 |
28 |
780 |
4-26 |
20-26 |